• +374 (11) 580606
  • info@cost.am
  • Երևան, Արաբկիր

  • Արաբկիրի սրտում՝ Գևորգ Վարդանյան 1/3 հասցեում, կառուցվում է Sunday Towers բնակելի համալիրը։

  • 2028

  • Sunday Towers բնակելի համալիր շահագործման է հանձնվելու 2028 թվականին։

  • սկսած 850,000 դրամից

  • 1 քմ-ի արժեքը սկսած 850՝000 ՀՀ դրամ, կախված հարկից, մակերեսից և դիրից։

  • սկսած 52,7 քմ

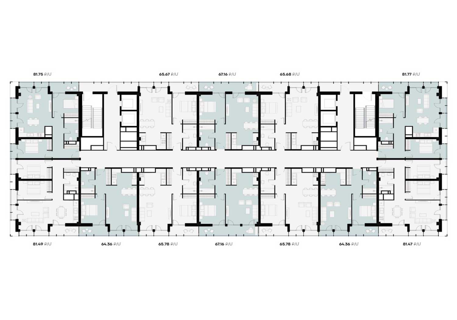
  • 2-4 սենյականոց բնակարաններ՝ 52-188 քմ մակերեսներով

Արաբկիր համայնքի սրտում գտնվող Sunday Towers-ը բնակելի համալիր է, որը նորովի է բնորոշում Երևանի քաղաքային կյանքը: Ճարտարապետորեն տարբերվող 6 շենքերով և աշխույժ համայնքով այն առաջարկում է ապրելակերպ, որը համատեղում է քաղաքի հարմարավետությունն ու էներգիան: Պարզապես պատկերացրեք մի վայր, որը հիշեցնում է պայծառ, անհոգ կիրակի, որտեղ դուք կարող եք հանգստանալ ձեր տանը և վայելել բարձրակարգ հարմարություններ, որոնք բարձրացնում են կենսամակարդակը և գեղեցկացնում ձեր կյանքը:

Հարմարավետությունը Sunday Towers-ի ամենակարևոր ասպեկտներից մեկն է։ Յուրաքանչյուր մանրուք մանրակրկիտ մշակվել է հարմարավետ և հանգստացնող մթնոլորտ ստեղծելու համար՝ սկսած ընդարձակ, բարձր առաստաղներով բնակարաններից մինչև մտածված հանրային տարածքները:

Ստվերները, շերտերը, երկրաչափական ձևերը և ռիթմիկ գծերը միավորվում են ՝ կազմելով Sunday Towers-ի ճարտարապետական սիրտը: 6 շենքերից յուրաքանչյուրն ունի յուրահատուկ ձև, գույն և ոճ: Չնայած իրենց անհատականությանը՝ շենքերը ներդաշնակորեն զուգորդվում են միմյանց հետ, ստեղծելով մի կոմպլեքս, որը միաժամանակ զարմացնում է իր արտաքին տեսքով և դիզայնով: Վստահ ենք, որ Sunday Towers-ը շուտով կարող է դառնալ Երևանի ճարտարապետական տեսարժան վայրերից մեկը՝ ի շնորհիվ իր անթերի դիզայնի և համարձակ նորարարությունների: Այս համալիրը պարզապես շենքերի խումբ չէ, այն ինքնաբավ քաղաքային միջավայր է, որտեղ ժամանակակից ճարտարապետությունը զուգորդվում է դինամիկ, բայց հանգիստ ապրելակերպի հետ, ճիշտ այնպես, ինչպես յուրաքանչյուր արևոտ կիրակի:

Sunday Towers-ում կայանատեղիները մեր ամենակարևոր առավելություններից մեկն է: Ունենալով ավելի քան 500 կայանատեղի, մենք լուծել ենք Երևանի ամենահրատապ քաղաքային խնդիրներից մեկը: Համալիրում մեր ընդարձակ կայանատեղիները ապահովում են հարմարավետ մուտք ինչպես Sunday Towers-ի բնակիչների, այնպես էլ հյուրերի համար:

ՏԻՊԱՅԻՆ ՆԱԽԱԳԾԵՐ

  • Զանգահարեք +374 (11) 580606
  • Գրեք info@cost.am
  • Երկուշաբթի-Ուրբաթ 9։30 - 18։00